See All Units For Lease

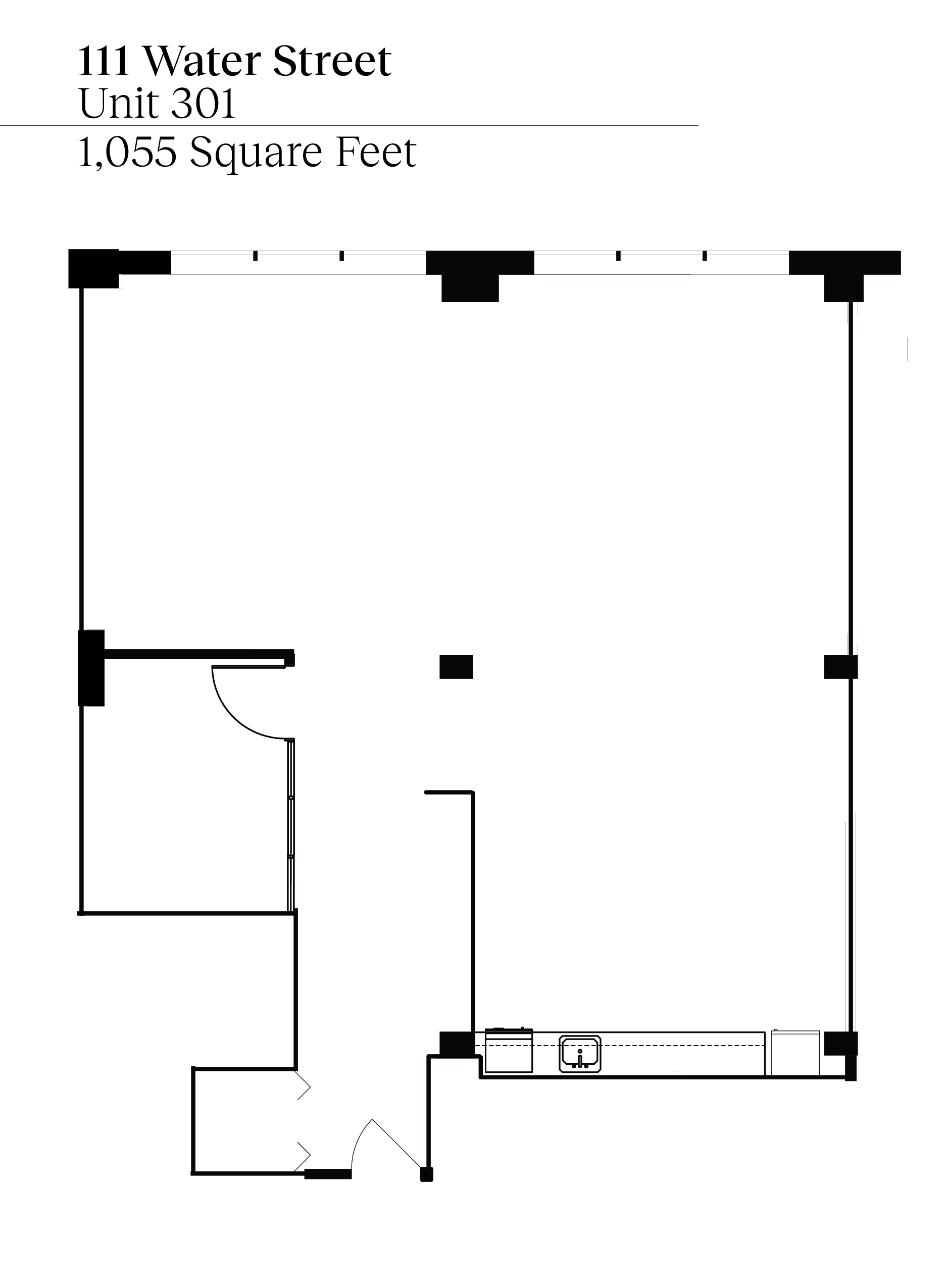
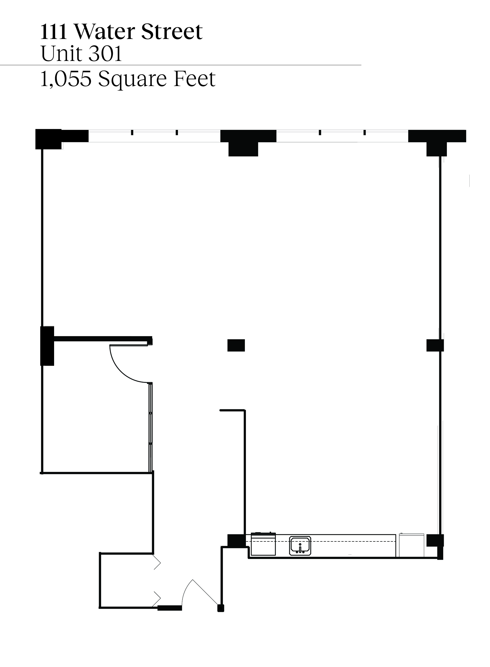
301 - 111 Water Street

1,055 ft2

area (approx.)

$4,394 | MO

Gross Rent (exc. GST)

$32.00 | SF

Net Rent

The Space

Address: 111 Water Street

Suite #: 301

Rentable Area: 1,055 ft2

Basic Rent: $32.00 | SF | YR

Additional Rent: $16.06 | SF | YR

Management Fee: 6% of Basic Rent

Occupancy Date: On Notice

Lease Type: Net Lease

Lease Term:

Property Type: Office

Features

Bright character office in the heart of Gastown with sweeping views of the harbor and North Shore mountains. Suite 301 is a 1,055 SF corner unit featuring unobstructed North Shore views, exposed brick and timber beams, and a bright, open-concept layout ideal for collaborative teams.

 

The space includes a dedicated call room for privacy, along with a fully equipped kitchenette complete with stainless steel fridge and dishwasher. Large windows flood the suite with natural light, enhancing both the workspace and the panoramic outlook.

 

Located steps from Waterfront Station, the property offers immediate access to transit, restaurants, cafés, and the downtown core, making it an ideal location for creative, tech, or professional users.

Building Description

BUILDING HIGHLIGHTS

  • Building is equipped with high-speed fiber optic internet
  • In-house property management
  • 24-hour building access
  • Secured/gated parking (available at market rate)

 

This prominent Gastown Heritage building is located on the corner of Water Street and Abbott Street. Situated in historic Gastown, this heritage building constructed with brick and timber beams and offers typical heritage design and unique flavor. Suite finishing ranges from exposed sealed concrete to hardwood, air-conditioned, large windows and views. Secure Underground Parking.

301 – 111 Water Street

111 Water Street, Vancouver, BC, Canada

Download & Contact Information