See All Units For Lease

200 - 602 West Hastings Street

7,355 ft2

area (approx.)

$29,580 | MO

Gross Rent (exc. GST)

$27.00 | SF

Net Rent

The Space

Address: 602 West Hastings Street

Suite #: 200

Rentable Area: 7,355 ft2

Basic Rent: $27.00 | SF | YR

Additional Rent: $19.64 | SF | YR

Management Fee: 6% of Basic Rent

Occupancy Date: January 1, 2027

Lease Type: Net Lease

Lease Term:

Property Type: Office

Features

Rare full-floor opportunity in the heart of Downtown Vancouver, located at the corner of West Hastings and Seymour, just one block from Waterfront Station.

 

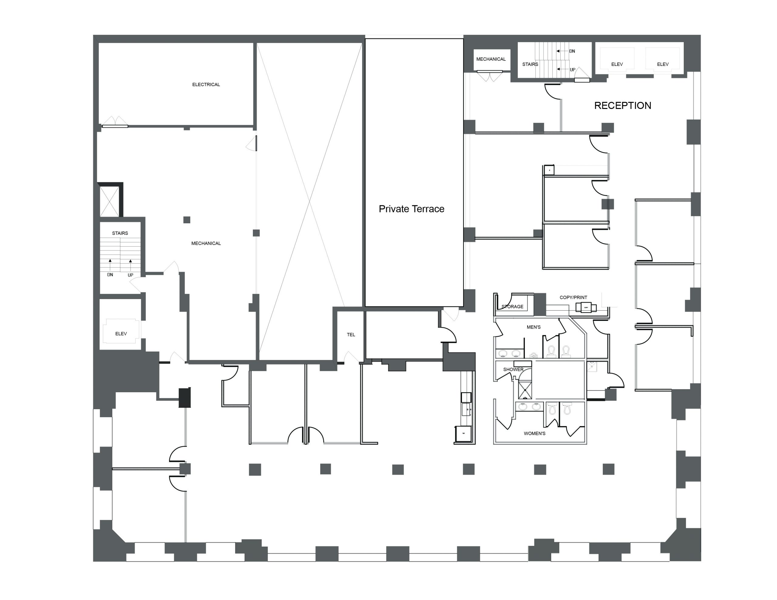
Unit #200 offers 7,355 SF of fully upgraded office space featuring matte black finishes, floor-to-ceiling glazing, polished concrete floors, and exclusive access to an expansive private outdoor terrace. The suite also benefits from a mezzanine level which can be leased with the premises for an additional 800 sq.ft.

 

The suite benefits from direct elevator exposure into a dedicated reception area with a prominent branding wall, creating an impressive arrival experience for a flagship office.

 

The existing layout includes nine private offices, two boardrooms, two call rooms, and generous collaborative space, ideal for professional firms, tech companies, or corporate headquarters seeking turnkey space with identity and presence.

 

Available January 1, 2027

Building Description

This landmark property is steps from Waterfront Skytrain Station, ideally situated on the corner of Hastings and Seymour Street in the heart of Downtown Vancouver. The property is a short walk from many major transportation routes, restaurants, and shopping areas. Neighbourhood amenities includes Trees Organic Coffee, Shoppers Drug Mart, Simon Fraser University, London Drugs, Gotham Steakhouse and Starbucks.

 

The building features a generous lobby, two new passenger elevators, security card access, operable windows, flexible office layouts, air-conditioning on most floors, wheel chair access and high-speed fibre optic internet.

200 – 602 West Hastings Street

602 West Hastings Street, Vancouver, BC, Canada

Download & Contact Information

Dan Smith

Reliance Properties Ltd.

leasing@relianceproperties.ca

604.689.1119