See All Units For Lease

Floors 6 & 7 - 564 Beatty Street

9,725 ft2

area (approx.)

$44,045 | MO

Gross Rent (exc. GST)

$38.00 | SF

Net Rent

The Space

Address: 564 Beatty Street

Suite #: Floors 6 & 7

Rentable Area: 9,725 ft2

Basic Rent: $38.00 | SF | YR

Additional Rent: $14.08 | SF | YR

Management Fee: 6% of Basic Rent

Occupancy Date: April 1, 2026

Lease Type: Net Lease

Lease Term:

Property Type: Office

Features

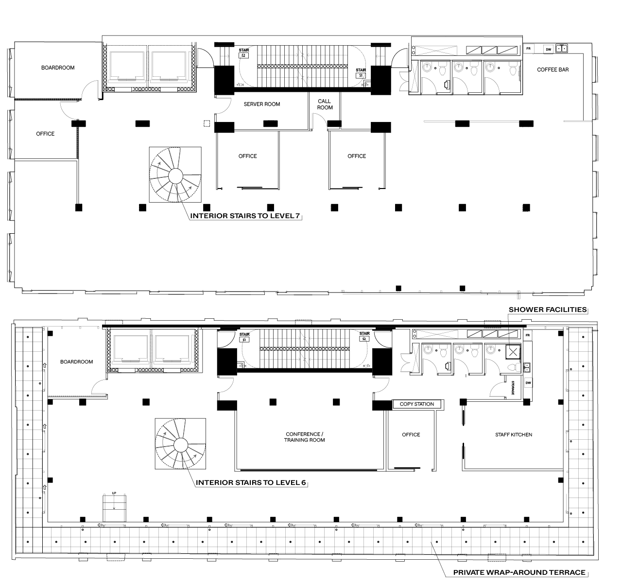
A rare opportunity to lease two full interconnected floors in one of Vancouver’s most striking heritage restorations.

 

This 9,723 SF brick-and-beam office seamlessly blends historic character with modern design, featuring exposed brick and polished concrete flooring, expansive floor-to-ceiling glazing, and a custom interior spiral staircase connecting both levels.

 

The workspace includes multiple boardrooms and private offices, a conference/training room, staff kitchen and coffee bar, and gender-neutral private washrooms with end-of-trip shower facilities. The highlight of the space is a private wrap-around terrace offering unobstructed downtown views, perfect for team gatherings or executive events.

 

Tenants benefit from direct elevator access, dedicated reception, and access to the building’s communal rooftop patio, secured bike storage, and LEED Gold–certified building systems designed for efficiency and comfort. Located steps from Stadium–Chinatown Station in the heart of Crosstown, 564 Beatty offers exceptional connectivity and proximity to Vancouver’s top restaurants, cafés, and amenities.

 

Basic Rent: $38.00 PSF per annum

Additional Rent: $14.08 PSF (2025 est.)+ 6% Management Fee

Available April 1, 2026.

Building Description

The LEED Gold heritage restoration and commercial addition to 564 Beatty Street in Crosstown is a flagship project for Reliance Properties, and also for the city. Situated in Vancouver’s Crosstown neighborhood, you’ll be surrounded by a dynamic and vibrant community, with a variety of dining, retail, and recreational options right at your doorstep.

 

Ten storeys and 50,000 sq. ft. overall. Levels two through six are fully restored heritage brick and beam and levels seven through ten are new concrete and glass construction.

 

Designed in partnership with IBI Group, the project juxtaposes newly restored heritage with four stores of contemporary glass – accented with a reveal floor that preserves the original roofline, produces an exterior deck, and has the effect of floating the upper three stories as a single, perfect volume.

Floor 6 & 7 – 564 Beatty Street

564 Beatty Street, Vancouver, BC, Canada

Download & Contact Information